-
张福明
首钢集团有限公司
一、现代高炉炼铁技术发展现状
1,现代高炉炼铁技术的发展环境

进入21世纪以来,高炉炼铁工艺再次受到自然资源短缺、能源供给不足以及环境保护等方面的制约,面临着较大的发展问题。面对当前严峻的形势和挑战,21世纪高炉炼铁工艺要实现可持续发展,必须在高效低耗、节能减排、循环经济、低碳绿色、清洁环保等方面取得显著突破,需要进一步提高风温、降低燃料比,以提高高炉炼铁技术的生命力和竞争力。


2.中国高炉炼铁技术发展现状
进入新世纪以来,我国高炉大型化和高炉现代化带动了高炉炼铁技术进步。2000年2000m3以上的高炉仅有18座,到2012年2000m3以上的高炉已发展到100余座,4000m3以上高炉已经达到22座一批4000-5800m3的特大型高炉相继建成投产标志着中国高炉大型化已经步入国际先进行列。
2016年我国重点钢铁企业的高炉利用系数2.44t/(m3·d),燃料比502kg/t,焦比361kg/t,煤比142kg/t以上,炼铁工序能耗391kgce/t,热风温度1139℃。2005年以后,随着我国1000m3以上大型高炉数量的快速增加,高炉燃料比和入炉焦比等指标显著降低。


3.未来高炉炼铁的发展目标
① 燃料比≤500kg/t,先进高炉燃料比应≤480kg/t;入炉焦比应 ≤ 300kg/t , 先进高炉焦比 应 ≤ 280kg/t ;煤比≥180kg/t,先进高炉煤比应达到200~250kg/t,喷煤率达到45%~50%。
② 高炉有效容积利用系数达到2.0~2.3t/(m3•d),原燃料条件好、技术装备水平高的大型高炉应达到2.5t/(m3•d)。
③ 高炉一代炉役寿命≥15a,高炉一代炉役单位容积产铁量应达到10000~15000t/m3;技术装备水平高、原燃料条件好的大型高炉,一代炉役寿命要力争达到20a以上,高炉单位容积产铁量达到15000t/m3以上热风炉寿命要大于或等于高积产铁量达到15000t/m3以上;热风炉寿命要大于或等于高炉的一代炉役寿命。
④ 热风温度达到1200~1250℃ ,大型高炉风温应达到1250~1300℃。
⑤ 高炉富氧率达到3%~5%,先进高炉富氧率应达到5%~10%。
二、现代高炉的功能解析与转变
现代高炉炼铁工艺经过近200年的演进发展,在原料处理、炼焦喷煤、高热风技术、大型化和长寿技术等方面取得了较大进步,已经发展成为目前氧化矿物还原效率最高的还原装置。高炉的主要功能也随其发展在不断演变。

1.还原器和渗碳器
高炉是典型的竖炉型冶金反应器,高炉高温还原过程赖以顺利实现的前提,是焦炭料柱的存在和其不可取代性,这就决定了在高炉内还原过程进行的同时,总是伴随有不同程度的渗碳过程。
� 熔化器
高炉最主要的功能就是为转炉提供优质的液态铁水,这是转炉炼钢赖以存在的基础,高炉从以铁氧化物为铁素源的固态矿物中还原得到液态金属铁,因此它具有熔化器的功能;同态矿物中还原得到液态金属铁,因此它具有熔化器的功能;同时,高炉连续还原出铁水的方式决定了它是一个连续的铁水供应器。

2.能源转化器
高炉生产过程中,伴随着巨大的能源消耗和能量转换过程,其特点是将焦炭、煤粉、天然气、重油等化学能转化为高炉产出物的物理显热和化学能,因此高炉具有能源转换器的功能。随着高炉节能技术的进步,TRT和其他余热、余能回收利用技术的实施,使得高炉作为能量转换器的功能愈显突出。
3.消纳固体废弃物
高炉炼铁设备除了具有冶金功能外,还具有消纳大宗固体高炉炼铁设备除了具有冶金功能外,还具有消纳大宗固体废弃物的功能,包括利用焦化工艺和高炉喷吹处理废塑料,烧结利用钢铁厂粉尘造块,利用焦炉热解处理城市生活垃圾等。


4.关键共性技术
• 关键共性技术就是指在钢铁生产流程中技术关联度大,对结构影响力大,并且在整个钢铁行业领域具有共性的技术。
• 关键共性技术的选择、集成,必须对整个钢铁制造流程工艺、装备和产品结构之间的关系进行深入研究和总体认识并且理性分析和权衡取舍,探索对不同类型钢铁企业影响面大的共性技术和对整体生产流程关联度高的关键技术。
• 在深化认识的基础上,确立这些关键共性技术对钢铁工业不同发展阶段所起的战略主导地位。
• 关键共性技术的突破与集成创新,对钢铁制造流程的整体结关键共性技术的突破与集成创新,对钢铁制造流程的整体结构优化产生了重大影响。
• 关键共性技术的开发、应用和推广,既要注重对关键共性技术的判断和正确选择,也应当结合实际进行深化和创新,还必须正确把握这些关键共性技术的时序安排和互相关系。
• 20世纪90年代的高炉喷煤技术、高炉长寿技术等都属于关键共性技术,这两项具有战略意义的关键共性技术对于推动中国炼铁工业科技进步
• 进入21世纪以后,我国高炉大型化、装备现代化、高风温和高炉煤气干法除尘-TRT技术取得了长足进步,带动了产业发展和整体技术水平的提升
• 在此期间,一批3200m3级高炉相继建成投产;世纪之初,数座4000m3级高炉建成投产,特别是我国自主设计建造的首钢京唐5500m3特大型高炉建成投产,使我国成为世界上第四个拥有5000 3以上超大型高炉的国家标志着我国已第四个拥有5000m3以上超大型高炉的国家,标志着我国已经完全掌握了超大型高炉的设计建造和操作运行技术
• 目前我国已拥有22座4000以上巨型高炉,高炉大型化进程取得显著成效
• 21世纪初的前10年,以我国自主研发及应用的顶燃式热风炉高风温技术为代表,较好地解决了高温热风的获得、高温热风的输送与高温热风的使用三个关键难题,使中国高风温技术水平得到有效提升完全自主设计研发的高炉煤气布袋干法除尘技术在首钢京
• 完全自主设计研发的高炉煤气布袋干法除尘技术在首钢京唐5500m3高炉获得成功应用以后,得到广泛推广普及,新建或大修改造的1000m3以上高炉基本全部采用了高炉煤气布袋除尘技术。
三、构建高效低成本技术体系
1.高炉炼铁技术发展理念
• 未来钢铁工业的可持续发展,必须充分研究市场需求、产品竞争力和资源-能源-环境的承载能力,实现低碳绿色化发展。
• 对于具体的钢铁厂而言,要根据全厂的产量规模、产品结构、总图布局,以实现物质流、能量流和信息流动态有序、协同连续、高效耦合运行为目标,合理确定高炉的座数和高炉容积。
• 在钢铁行业供给侧结构性调整、淘汰落后、转型升级的宏观经济形势下,不宜过分追求钢铁厂产能和产量,要转变以粗放型产能规模扩张的发展道路,坚持走集约化、绿色化、智能化、品牌化的可持续发展之路。
• 高炉大型化和装备现代化是中国钢铁工业发展的重要方向和路径,必须坚持钢铁厂流程结构优化前提下的大型化,以实现钢铁制造流程的动态有序、协同连续、集约高效、耗散优化为目标。
• 未来中国钢铁工业的结构调整与优化,将以去产能、减量化发展为前提,淘汰落后、流程优化、结构调整、技术升级势在必行。
• 高炉设计建造过程中,必须以整个钢铁制造流程协同优化的视角,站在钢铁厂生存发展的全局性战略层次上,以构建钢铁制造全流程要素-结构-功能-效率协同优化为以构建钢铁制造全流程要素 结构 功能 效率协同优化为关注点,实现烧结、球团、焦化、炼钢、轧钢以及全厂能源系统的协同优化,同时注重流程网络的耗散优化、重构优化和时空关系,使物质流、能量流和信息流实现高效耦合“层流式”运行,提高运行效率和运行质量。
• 总体看来,未来中国钢铁工业的发展,必须坚持以去产能、减量化为基本方针,持续开展钢铁产业结构调整和优化升级,通过淘汰落后、技术改造和装备升级,优化钢铁制造流程及其网络结构,构建钢铁制造流程耗散优化的自组织体系,实现市场-产品-质量与资源-能源-环境的和谐有序发展。
2.注重界面技术优化
① 简捷化的物质流、能量流通路(例如平面图等);
② 工序/装置之间互动关系的缓冲-稳定-协同(例如动态运行Gantt图等);
③ 制造流程中网络节点优化和节点群优化以及连接器形式优化(例如装备个数、装置能力和位置合理化、运输方式、运输距离、输送规则优化等);
④ 物质流效率、速率优化;
⑤ 能量流效率优化和节能减排;
⑥ 物质流-能量流-信息流的协同优化等。
在工程设计中,由于上、下游工序/装置的“界面技术”合理化,容易实现生产过程的组织协调;容易实现生产过程、调度过程的信息化、智能化;并使装置、设备的生产运行速率高、生产效率高;同时单位产能的投资也最省。
3.炼铁工程优化集成
面向供给侧结构性改革和企业转型升级,未来高炉新建或技术改造工程设计中,要实现高效、低耗、长寿、清洁、安全等多目标优化,包括工程科学、关键技术、工程应用、工程决策、工程投资等方面的问题。决策、工程投资等方面的问题。
在未来高炉设计中应该着力开发以下集成技术 :
(1)动态-有序、协同-连续运行的集成技术,其中包括单元工序/装置动态有序运行技术、各类优化的“界面技术”和流程网络优化技术等
(2)高效率-低成本炼铁生产平台技术
(3)能源的高效转换、充分利用和系统节能技术
(4)物质流、能量流、排放流的信息控制与管理技术
(5)废弃物循环利用和无害化消纳、处理技术
(6)清洁生产和环境信息监控技术
(7)多工序协同优化与耦合匹配技术
4.合理确定高炉产量、容积与座数
钢铁厂生产能力的选择要适应社会发展和市场需求,根据区域需求和钢铁市场结构需求,结合企业实际情况,因地制宜、科学决策,合理确定钢铁厂的产品定位和生产规模。应根据钢铁厂整体流程结构的合理性、高效性、经济性综合考虑确定钢铁厂产能,进而再据此确定高炉的产能、数量和容积。
考虑到物质流、能量流和信息流网络结构的优化,一个钢铁厂配置2~3座高炉是适宜的选择,应当以钢铁厂整体流程结构优化为前提,科学合理配置高炉,钢铁厂流程结构优化条件下的高炉大型化是未来高炉的发展方向。

5.合理确定高炉技术经济指标
高炉设计应结合原燃料条件、技术装备、操作技术以及同级别高炉的生产实践,确定先进合理的技术经济指标。

四、高效低成本炼铁关键技术
1.高炉精料技术
精料是当代巨型高炉实现高效、低耗、优质、长寿的基础,也是实现高炉生产“减量化”的重要措施。
(1)采用合理炉料结构
• 亚洲国家高炉炉料结构:高碱度烧结矿+酸性球团矿+少量块矿
• 欧美高炉炉料结构:球团矿比率较高,部分高炉全部采用球团
• 采用运筹学数学规划优化确定合理炉料结构
• 新世纪大型高炉炉料结构:遵循原有炉料结构,注重综合冶金性能,开发研究低品质矿的高效利用技术,实现资源减量化和利用最佳化。


(2)提高炉料冶金性能
对炉料冶金性能的要求更为严格,更加注重提高炉料冶金性能的稳定性。
现代大型高炉精料技术的主要特点:
� 提高入炉矿品位:入炉矿综合品位达到58%以上,熟料率80%-85%,适当增加块矿比率,降低原料成本
� 提高焦炭质量: M40≥89% , M10≤6.0% , CSR≥68% ,CRI≤25%,平均粒度≥45mm
� 提高炉料成分和理化性能的稳定性减少成分和性能的波
� 提高炉料成分和理化性能的稳定性,减少成分和性能的波动
� 采用炉料分级入炉技术,提高煤气利用率,实现铁素资源的最大化利用
� 低品质矿的高效化利用,实现资源利用的“减量化”

(3)采用炉料分级入炉技术
采用炉料分级入炉,可以实现炉料分布的精准控制,改善高炉透气性和煤气利用率,促进高炉顺行,降低燃料消耗。
烧结矿按照粒度级别分为2级,大粒度烧结矿粒度为20-50mm,中粒度烧结矿粒度为8-20mm,回收3-8mm的小粒度烧结矿,提高原料利用率。焦炭按照粒度级别分为25-60mm和60mm以上两级。
回收3-5mm的小粒度烧结矿不仅可以提高资源利用率,还可以用来抑制高炉边缘煤气流过分发展,降低炉墙热负荷,有利于延长高炉寿命。回收10-25mm的焦丁与矿石混装入炉可以改善高炉透气性,降低燃料消耗,稳定高炉操作。
2.无料钟炉顶设备与炉料分布控制技术
当代大型高炉生产效率高,炉料装入量大,装料设备,不仅要满足高炉装料能力,还要满足高炉操作对炉料分布精准控制的要求,实现炉料分级入炉以和中心加焦。
并罐式无料钟炉顶设备与串罐式相比优势在于:可以实现炉料分级入炉和中心加焦。
三罐无料钟可以实现7种炉料分级入炉的要求,实现更精准的炉料分布控制。



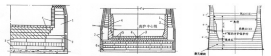
3.高炉长寿技术
高炉长寿的实质是“在高炉一代炉役期间,保持合理的高炉操作内型”。当代大型高炉设计寿命均为15年以上,巨型高炉20-25年,一代炉龄单位容积产铁量将达到15000-20000t/m3。
(1)优化高炉炉型
高径比降低有效高度维持在30-33m高径比均降低到2 0高径比降低,有效高度维持在30 33m,高径比均降低到2.0以下;适度增加死铁层深度,死铁层深度均达到3m以上,约为炉缸直径的20%-25%;炉缸直径和炉缸高度适度加大,炉腰直径加大,炉身角和炉腹角缩小。

(2)采用炉体长寿结构
21世纪大型高炉采取了合理的炉体长寿结构和先进的冷却技术,纯水(软水)密闭循环冷却系统在巨型高炉上得到普遍应用,高炉炉底炉缸、炉体冷却器、风口、热风阀等均采用纯水(软水)冷却。显著的技术特征是在炉腹至炉身中下部区域大量采用铜冷却壁,依靠高效铜冷却壁及合理配置的冷却系统,形成基于渣皮保护的“永久内衬”以延长高炉寿命。
(3)采用合理炉缸炉底内衬结构
通过确定合理的死铁层深度,采用合理的炉缸炉底内衬结构,应用抗铁水渗透、抗铁水熔蚀性、抗碱侵蚀性优异的高导热炭砖配置合理的冷却系统抑制炉缸炉底象脚状异常侵蚀热炭砖,配置合理的冷却系统,抑制炉缸炉底象脚状异常侵蚀,使大型高炉寿命达到15-20年,先进高炉达到20年以上。

4.高风温技术
高风温是高炉降低焦比、提高喷煤量、提高产量的重要技术途径,大型高炉的设计风温一般为1250-1300℃,提高风温是21世纪大型高炉的一个显著技术特征。
20世纪以前,5000m3以上的巨型高炉全部采用外燃式热风炉最具代表性的外燃式热炉是新日铁式和地得式首钢京炉,最具代表性的外燃式热风炉是新日铁式和地得式。首钢京唐5500m3高炉开发并应用了顶燃式热风炉,这是世界上首次将顶燃式热风炉应用在5000m3以上的巨型高炉,实现了巨型高炉热风炉结构形式的技术突破。
现代大型高炉在热风炉结构形式呈现多样化发展的同时,其主要技术特征体现在:
(1)采用空煤气低温双预热或富化煤气,使风温达到1250℃
(2)采用预热炉预热助燃空气,在单烧高炉煤气的条件下实现1250-1300℃风温
(3)通过优化燃烧过程及气流运动研究,提高气流分布的均匀性,采用高效格子砖,缩小拱顶温度与风温的差值
(4)优化热风管道系统结构,采用无过热-低应力设计体系,合理设置管道波纹补偿器和拉杆,妥善处理管道膨胀以降低管系应力,热风管道采用组合砖结构,消除热风管道的局部过热和窜风
(5)采取有效的炉壳晶间应力预防措施,延长热风炉使用寿命
(6)优化热风炉操作,合理设定热风炉工作周期,提高热风炉换热效率
(7)降低燃料消耗,减少NOx和CO2的排放,实现节能减排与低碳环保
5.高炉煤气除尘技术与TRT
20世纪80年代,以日本为代表开发成功了高炉煤气干法布袋除尘工艺,取代湿法除尘应用于大高炉取得了较好的效果,电量可以提高30%以上,但仍需湿法备用。
首钢京唐2座5500m3高炉均采用了煤气全干法布袋除尘工艺,完全取消了备用的湿法除尘系统,采用自主开发研制的低压脉冲清灰布袋除尘技术,利用低压氮气作为布袋清灰介质,采用低压脉冲反吹清灰工艺,可以实现布袋除尘系统的在线清灰,煤气干法除尘系统运行安全稳定,TRT发电量提高约45%。

高炉煤气干法除尘与余压发电技术
• 高炉煤气干法除尘技术是21世纪高炉实现高效低耗、绿色低碳、节能减排、清洁生产的重要技术创新。
• 同传统的高炉煤气湿式除尘技术相比,提高了煤气净化程度、煤气温度和热值,可以显著降低炼铁生产过程的新水消耗和动力消耗,还可以提高二次能源的利用效率、减少环境污染。
• 高炉煤气干法除尘-TRT技术是现代钢铁工业发展循环经济、实现可持续发展的重要技术途径,已成为当今高炉炼铁技术的发展方向。

• 新世纪初新建的1000m3级的高炉相继采用此项技术,目前已推广应用到数十座2000~5500m3级大型高炉。
• 目前我国自主开发的高炉煤气干式布袋除尘技术在设计研究、技术创新、工程集成及生产应用等方面取得突破性进展,自主设计开发的大型高炉煤气全干式脉冲喷吹布袋除尘技术,完全取消了备用的高炉煤气湿式除尘系统。
• 研究开发了高炉煤气布袋除尘低压脉冲喷吹清灰技术、煤气温度控制技术、煤气含尘量在线监测、除尘灰浓相气力输送、管道系统防腐等关键核心技术,使大型高炉煤气全干式布袋除尘技术日臻完善。
自主研发的核心技术
• 采用全干法除尘工艺,开发大容量除尘器,煤气流量为87×104m3/h,取消了湿法备用系统。
• 攻克了煤气温度控制、装备制造和自动化控制等技术难题。开发了喷碱脱氯和管道防腐技术;
• 全部设备国内制造,国产化率达100%,具有自主知识产权;
• 开发了全干法除尘与TRT耦合技术。
生产运行效果
(1)处理后净煤气含尘量下降到2-4mg/m3。
(2)与煤气湿法除尘相比,年节水190万t/a。
(3)吨铁发电量平均45.9kWh,比设计45kWh/t提高2%,比湿法
提高35%。年发电4.088亿kWh,节约标煤3.4万t。
(4)全年减少CO2排放 10.6万t。

6.高炉富氧喷煤技术
高炉喷煤是20世纪60年代以后,高炉炼铁技术的一项重大创新和技术发展。20世纪80年代以后,形成了世界范围内的发展高潮。目前,高炉大量喷煤已成为当代高炉最重要的技术特征之一,先进高炉喷煤量已经达到200kg/t以上,一般采用并罐式一总管一配器的直接喷煤工艺。
富氧鼓风是当代高炉强化冶炼的有效技术措施之一,可以充分发挥高风温、喷煤降焦的综合作用,提高喷煤量和煤粉燃烧率,对提高煤粉燃烧率和喷煤量的作用十分显著。因此,21世纪大型高炉全部采用高炉富氧喷煤综合技术。


以降低高炉燃料消耗、提高生产效能为技术目标,以提高风温、提高喷煤量为技术途径,以精料技术和优化操作为技术保障,高炉富氧喷煤仍然大有可为。
五、值得重点关注的几个问题
1. 实现钢铁厂流程结构优化条件下的高炉大型化,构建钢铁厂物质流、能量流、信息流流程网络系统优化的动态精准运行体系。
2.合理控制高炉运,行建立科学合理的生产指标评价体系,实现高炉炼铁“高效、低耗、优质、长寿、清洁”的多标协同优化;构建高效率、低成本、低消耗、低排放的高炉炼铁技术体系。
3. 继续坚持精料方针,开发研究低品质矿石的利用技术,优化高炉炉料结构,建立并应用以“数学规划”为基础的炉料优化数学模型。
4. 保障高炉操作稳定顺行,延长高炉寿命。重视炉缸炉底和炉腹至炉身下部区域的寿命,使大型高炉寿命达到15年以上。
5. 贯彻循环经济理念,实施低碳冶炼,促进高炉炼铁的可持续发展。
六、结 语
� 新世纪初,当代高炉炼铁技术面临着资源短缺、能源供给不足和生态环境的制约,实现高炉炼铁工艺的可持续发展,必须坚持精料技术方针,采用高风温、高富氧大喷煤技术,降低燃料消耗和生产成本,这是当代高炉炼铁技术发展的必由之路。
� 基于冶金流程工程学理论,构建当代高炉动态精准设计体系,实现高炉炼铁系统“三大功能”,发展循环经济、低碳冶炼、绿色环保。
� 高风温是综合技术,是降低燃料比、提高喷煤量的重要技术保障。在当前条件下,利用低热值高炉煤气实现1250℃以上高风温,是实现低品质能源高效利用和高效能源转换最优化的技术措施。
(责任编辑:zgltw)







