-
摘 要:对石钢2号高炉(1080m3)炉缸局部热流强度升高进行了研究与分析,并通过采取炉皮灌浆、加装炉衬监测电偶、调整风口布局、改高压水加强冷却、局部堵风口、降低冶强等一系列有效的控制措施,使炉缸热流强度降到安全范围内,保证了高炉生产中炉缸的安全运行。
关键词:高炉; 炉缸侵蚀;控制措施;
1前言
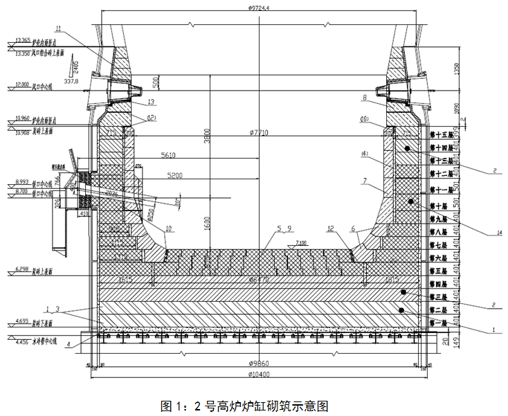
石钢2号高炉(1080m3)于2011年5月6日建成投产,是石钢首座1000立方米级别高炉,到2016年12月31日,运行5年半,单位炉容产铁量5432.431t/m3。2号高炉炉缸炉底采用陶瓷杯+碳砖整体式陶瓷炉缸内衬(如图1),陶瓷杯杯底采用单层高度800mm刚玉砖,底部采用4层大炭砖+小炭砖(高度400mm)砌筑。炉缸直径7900mm,炉缸高度3800mm,死铁层厚度1600mm,炉缸和死铁层跨越了第二段和第三段冷却壁(每层冷却壁高度2.08m),设有东西两个铁口,在第二段和第三段冷却壁中间,分别由4块冷却壁组成。炉缸共有两段冷却壁组成,炉缸一层36块,炉缸二层34块,高度2.08m。近两年以来炉缸部分监测电偶温度上行幅度较大,部分炉皮温度和炉缸热流强度升高,部分区域达到25000—30000 kcal/m2•h。炉缸象脚区局部侵蚀严重,经及时采取炉皮灌浆、加装炉衬监测电偶、调整风口布局、改高压水加强冷却、局部堵风口、降低冶强等措施,炉缸热流强度下降到10000—15000 kcal/m2•h左右,炉皮温度降到50℃以下,炉缸侵蚀得以控制,保证了炉缸的安全运行。

2 2号高炉炉缸监测系统
2.1 炉缸一层冷却壁电偶:
炉缸一层冷却壁电偶(如图1)水平标高7.795m,插入冷却壁背面100mm(冷却壁总厚度150mm),距离铁口中心(8.7米)以下0.905米,距离炉底陶瓷杯面(7.1米)往上0.695米;安装10支电偶,分别安装在5°(1#冷却壁)、45°(5#冷却壁)、85°(9#冷却壁)、95°(10#冷却壁)、145°(15#冷却壁)、185°(19#冷却壁)、225°(23#冷却壁)、265°(东铁口下方27#冷却壁)、275°(东铁口下方28#冷却壁)、315°(32#冷却壁)。

2.2 炉缸二层炉衬电偶:
炉缸二层炉衬电偶水平标高7.59m,插入炭砖深度230mm(炭砖长度915mm),插入测点距离炉缸中心点4700mm;插入深度(从炉壳外沿算起)556mm。插入点距离铁口中心(8.7米)以下1110mm,距离炉底陶瓷杯面往上490mm;安装6支电偶,分别安装在:10°(1#、2#冷却壁之间)、70°(7#、8#冷却壁之间)、130°(13#、14#冷却壁之间)、190°(19#、20#冷却壁之间)、250°(25#、26#冷却壁之间)、300°(30#、31#冷却壁之间)。

2.3 电偶温度变化趋势:
2.3.1炉缸一层冷却壁温度变化

炉缸一层冷却壁(第二段)45°方向(第5块冷却壁上)自2015年9月份开始升高(之前在60—80℃),到2015年10月16日最高上升到213℃,到2016年9月17日最高上升到244℃。其他方向温度基本上稳定在100℃以下。

2.3.2 炉缸二层炉衬温度变化
炉缸二层炉衬10°方向温度:之前在130-180℃之间,自2013年10月25日开始升高,到2014年5月2日最高上升到384℃,2014年11月日8下行至210℃左右波动,到2016年9月30日再次开始上行至300℃左右波动
2.4 炉缸冷却壁热流强度监测:


从炉缸一层冷却壁热流强度分析来看,炉缸一层一区15#(4#冷却壁)和二区33#(18#冷却壁)冷却壁水管热流强度较高达到26000—31000kcal/㎡.h。
2.5 炉皮温度监控

通过炉皮测温分析,炉皮温度高点在炉缸一层一区第4、5、6#冷却壁,炉皮温度超过60℃,最高在第4、5块冷却壁下半部,炉皮温度最高到了83.8℃。其他部位炉皮温度(除铁口部位,铁口部位受出铁因素比较大),基本上在50℃以下,整体在40℃左右。


2.6炉缸冷却壁后加炉衬电偶:
2017年2月15日针对当前炉缸一层4#、5#热流强度、炉皮温度高,以及当初炉衬监控电偶较少的问题,利用检修在炉缸一层冷却壁缝隙之间的下半部高温区打孔安装监测电偶,以增加电偶的监测数量。
首先确定安装位置:一区15#(4#冷却壁)、18#(5#冷却壁)热流强度较高,确定在30°(3#—4#冷却壁之间)、40°(4#—5#冷却壁之间)、50°(5#—6#冷却壁之间)精确划出两冷却壁间隙的中心线;高度上,通过炉皮红外测温枪测量炉皮温度的最高点的高度上,基本上确定最高温度在象脚区(标高7.2米左右)。
钻孔:原则上边钻边观察孔内情况并测量料层温度。在钻头上安装限位200mm、250mm、280mm、300mm,每次钻孔时都要严格控制限位,并观察钻研情况,当料层出现发红、温度达到500℃或是有火星飞溅时,立即停钻。其中40°(4#—5#冷却壁之间)方向,在打眼过程中,钻眼深度到280mm时,发现里面出现鲜红,用红外测温枪测里面料层温度达到546℃,后用高铝浇注料进行封堵。30°(3#—4#冷却壁之间)方向钻至250mm,50°(5#—6#冷却壁之间)钻至300mm,没有发红。
安装电偶:炉皮外安装异性电偶套管,保证能安装号电偶后进行孔内灌浆。

从钻电偶孔情况来看,炉缸一层40°方向(4#—5#冷却壁之间)钻眼深度到280mm时,发现里面出现鲜红,面料层温度达到546℃,表明此处炉缸侵蚀较严重。通过增加重点区域炉衬电偶的监控,更能准确的判断该处的炉缸侵蚀情况。
通过热流强度、炉皮温度、电偶温度、钻孔等监控数据分析,炉缸一层一区4#、5#冷却壁方向,下半部象脚区侵蚀比较严重。
3 处置
3.1抓好操作和管理,保持高炉稳定顺行
生产实践表明,长期稳定顺行的炉况,不但是高炉高产、低耗的先决条件,也是高炉长寿的必要条件,各种炉况失常,在发生发展和治理过程中,不可避免的要带来炉缸、炉底热负荷的大幅度波动。有些处理措施对炉底、炉缸还有直接的破坏作用,如加洗炉剂洗炉。因此要维护好炉缸炉底必须搞好高炉稳定顺行,减少炉况波动。
为了保证高炉稳定顺行,主要通过:①、抓原燃料管理,改善原燃料质量,减少粉末入炉。已经与公司协调改善原燃料质量,尤其是改善焦炭质量,同时减少炉缸死焦堆,增加其透液性,减轻炉缸的环流冲刷侵蚀。另外通过加强检查和过筛,基本克服了原燃料变差带来的不利因素。②、控制好操作炉型是保证高炉稳定顺行的保证。2号高炉根据炉身温度、炉喉十字测温等变化情况及时进行上下部调剂,使高炉高温区域控制在5、6段,并保持稳定。同时根据炉身各层的炉体温度变化,随时掌控炉身喷涂料的脱落情况,及时组织炉身一直六层的局部喷涂造衬来规整炉型。③、稳定中心、兼顾边缘,控制合理的两股煤气流分布,使两股气流保持一定的平衡,保证高炉的稳定顺行,2号炉十字测温中心温度稳定控制在500~600℃,边缘温度控制在65~90℃。此外还通过加强工长的精细化操作,做到早调微调,保证高炉的稳定顺行,减少炉况波动。
3.2监控措施
3.2.1安装热流强度和炉皮测温在线监控系统
经常检测对炉缸炉底维护是很必要的,只有经常检测,才能及时了解炉缸侵蚀状况,采取有效的措施,因此安装了炉缸热流强度在线监测,流量计采用原来的流量计,水温计重新安装(之前温度计测量数值不准确),安装原则上采取流量计和水温计在一根水管上,以保证数值的准确性。目前炉缸一、二、三段冷却壁共安装进、出水测温电偶112支。
同时安装了炉壳温度在线监测测温点10个,安装位置在标高7.1~7.5米的象脚侵蚀区,尤其在西南一区热流强度偏高,炉皮温度最高的5#冷却壁上(一区18#冷却壁水管)安装炉壳温度时时在线监测。

3.2.2加装炉衬电偶
2017年2月15日针对当前炉缸一层4#、5#热流强度、炉皮温度高的问题,利用检修在炉缸一层冷却壁缝隙之间的下半部高温区打孔安装监测电偶,以增加电偶的监测数量。

3.2.3加大炉缸监测力度
要求每班工长随时关注炉缸热流强度在线监测数据;炉缸热流强度处于高位期间,每天白班工长要对炉缸一层、二层炉皮温度整体测量一遍,中、夜班工长也要对炉缸一层、二层热流强度偏高部位的炉皮进行测温一遍,做好记录;每班工长要督促水工关注炉缸热流强度、水温差、温度的变化情况,尤其是热流强度异常升高时,铁前、铁中、铁后重点监测;每班工长对炉缸部位的检查不少于两次,做好记录,对炉缸部位的检查包括:炉皮是否有烧红、冷却水管是否有冒蒸气、热流强度和炉衬温度是否异常、炉皮是否冒火等等。
3.3 炉缸炉皮灌浆
炉缸炭砖和灌浆料、捣打料发生收缩和形变,导致炭砖间缝隙变大,炉缸捣打料与炭砖、冷却壁与捣打料之间产生间隙,冷却壁和炉壳之间产生缝隙,造成了串煤气,同时也降低了炭砖层的导热性能。针对上述情况分析:一方面,局部炉缸的陶瓷杯砖衬受侵蚀较为严重,局部已经侵蚀殆尽,导致侧壁炭砖内侧也受到侵蚀变薄。铁水与测温点的间距变短。另一方面,由于炉缸结构在生产过程中承受热应力和机械应力的作用,发生一定的形变,而且炉缸捣打材料本身受热也从而使得冷却壁的冷却效果变差,导致该区域的热量不能充分导出,加剧炭砖层的侵蚀。另外,部分冷却壁螺栓处有煤气泄露,炉缸区域炉壳和冷却壁与捣炭砖捣打料之间必然产生缝隙,有可能出现贯通性的窜气通道。
2017年1月份利用检修对炉缸二段冷却壁一区4#、5#、6#冷却壁区域,开孔7个,二区16、17、18#冷却壁区域开孔5个,西铁口区域开孔2个,对冷面进行灌浆,压浆孔位置开孔的尺寸为Φ50mm,将空割开以后,再安排工人用电锤清理孔洞,电锤钻头的直径为12~16mm,钻入深度控制在220~240mm之间。灌浆料材质为碳质灌浆料,灌浆量约为300kg。
2017年3月份对整个炉缸进行灌浆,开孔位置在炉缸二层。整圈总开孔36个点,灌浆量为1100kg。
3.4 调整风口布局、堵风口操作
2017年1月20日缩小热流强度高部位的风口4#(500×120→500×110),同时为保持总面积不变,扩12#风口小套(500×110→500×120),原则上缩小一区热流强度偏高的冷却壁上部风口,保持原风口面积不变,通过调整减轻回旋区对炉缸的冲刷。
2017年2月15日在加装监测电偶钻孔时,40°方向(4#、5#冷却壁之间)钻眼深度到280mm时,发现里面出现鲜红,用红外测温枪测里面料层温度达到546℃,为安全起见,直接采取堵热流强度偏高部位的4#风口操作,风口面积由0.2009m2减小到0.1914m2。
3.5 改高压水加大冷却强度
2017年2月15日、3月2日利用检修机会,将热流强度高的部位,尤其是炉缸一层(二段冷却壁)一区4#、5#冷却壁的15#、16#、17#、18#四根冷却壁水管改为高压水串联冷却,水压由原来软水的0.6MPa提到了1.53MPa,水量由23m3/h提高到了47.4m3/h,大大增加了冷却强度。
3.6优化高炉操作制度
产量和高炉的顺行状态是影响水温差升高最重要的两个因素。因此,对待炉缸安全问题,要树立高炉长期顺稳才是效益最大化的意识。
适当降低高炉冶炼强度。自2017年2月15日,发现在钻孔到280mm时里面料层鲜红后,高炉通过稳定标准风速、降低氧量来降低产量的方法,稳定标准风速203~208m/s,富氧量由原来的7000m3/h控制到了3000~3500m3/h,产量由3250~3300t/d降到了2900~2950t/d。其优点是可以保持风速和鼓风动能基本不变,有利于炉缸活跃和保证中心煤气流的稳定,减少铁水环流对炉缸的侵蚀。
适当提高生铁含硅,降低生铁含硫。[Si]和[S]含量的高低,一方面直接影响铁水的流动性,流动性太好,则对炉缸的侵蚀加剧,流动性太差则影响高炉的生产,造成炉况的波动,从而反过来损坏炉底炉缸。根据高炉的运行情况,以及满足品种钢冶炼的需求,适当提高[Si]0.35%~0.55%左右,[Si]在0.4% ~ 0.5%为宜,降低[S]0.015%~0.025%,铁水热量保持在1490~1510℃,碱度控制以满足生铁含硫和渣铁热量的需求为原则,参考R2=1.25~1.30,随着炉温的提高,适当降低镁铝比至0.60~0.62。并根据高炉顺行程度和炉底炉缸侵蚀状态随时调整。
加强炉前出铁组织。努力出净渣铁,尽量减少铁水在炉内的停留时间,这无疑对炉缸的维护是有利的。加强铁口的维护,禁止大喷铁口,统一四班的操作,确保四班出铁的均匀,保证出净渣铁。
4. 效果
(1)自采取措施后,炉缸一层整体热流强度尤其堵风口部位的热流强度和炉皮温度下降明显。

由热流强度趋势图,可以看出,通过采取一系列措施后,炉缸一层整体热流强度下降趋势,尤其是一区(堵4#风口部位)的热流强度下降幅度较大,一区15#由25000~30000kcal/m2h降至10000~11000 kcal/m2.h. 一区18#由20000kcal/m2.h左右降至11000 kcal/m2.h左右。

一区炉皮温度尤其是4#、5#冷却壁炉皮温度由60~70℃下降到了40℃左右。其他各区基本上也在40℃左右。
(2)自采取措施后,加装的炉衬电偶温度也明显降低。

炉缸一层一区新增三支电偶温度呈下降趋势: 30°方向由最高81℃下降至62℃; 40°方向由最高73℃下降到了48℃; 50°方向由最高127℃下降到了88℃。 通过采取一些列措施后,效果比较明显,热流强度明显下降,整体炉缸状态受控。
5 结论
(1)加强监测,增加炉缸温度监测点。炉缸温度检测是确保炉缸安全的重要手段。由于当时设计,炉缸原有的监测热电偶较少,应在重点部位通过炉壳钻孔,增加热电偶检测点,对炭砖、碳捣料进行有效监控。当发现有局部温度、热流强度升高时,必须采取有效措施,及时控制,不可大意致使升高部位蔓延,侵蚀加剧。
(2)降低高炉冶炼强度和堵风口操作是处理炉缸热流强度升高最有效,也是最直接的手段。
(3)目前2号高炉已进入后期阶段,虽采取一些措施,抑制了炉缸温度和冷却壁热流强度的升高,但从长远看,炉缸侵蚀对安全生产带来的后果及对指标强化等影响却无法弥补。合理的操作制度,实现高产与长寿的最佳平衡点,严格的监控管理,稳定的原燃料水平都是影响高炉长寿至关重要原因。
参考文献:
[1] 唐晓东. 第十五届全国大高炉炼铁学术年会论文集.
[2] 周传典. 《炼铁》杂志2013年.
[3] 周传典.高炉炼铁生产技术手册2002年.
(责任编辑:zgltw)







